- 20.2kW Névleges fűtési teljesítmény
- 24.8kW Névleges HMV teljesítmény
- Álló hőközpont Működés módja
- 92% "A" kategória fűtés , 76% "A" XL kategória HMV Szezonális hatásfok (2010/30/EU)
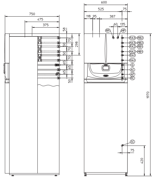
- 1970 / 600 / 750 Méret (mag/szél/mély)
Bemutatás
A HERCULES Solar 25 típusú álló, kondenzációs elven működő gázkazán 20,2 kW teljesítménnyel képes fűtési, és 24,8 kW-tal használati melegvizet előállítani. A gázkészülék gyárilag fel van készítve napkollektorok csatlakoztatására, beépítve tartalmaz minden gépészeti és szabályozó egységet! A készülék 200 literes, rozsdamentes acélból készült beépített használati melegvíz tárolóval rendelkezik. A tároló két fűtőcsőkígyója közül az egyik a napkollektoros rendszerrel hidraulikai köréhez csatlakozik. A HERCULES Solar 25 kazánok többzónás rendszerben is alkalmazhatók, zónánkénti szobatermosztátos szabályozással. Az opcionális bővítőkészletekkel legfeljebb három fűtési zóna kilakaítása lehetséges, melyek közül kettő keverőszelepes (alacsony hőmérsékletű) is lehet. A HERCULES Solar készülékek nagy vízterű fűtési rendszerekhez is alkalmazhatók. Külső érzékelő (opcionális) csatlakoztatása esetén időjárásfüggő szabályozás (alap felszereltség) használata is lehetséges.
BEÉPÍTETT NAPKOLLEKTOROS GÉPÉSZETI ÉS SZABÁLYOZÓ EGYSÉGEK
A HERCULES Solar jelölésű készülékek nem csak korszerű álló hőközpontként üzemelnek, hanem napkollektorok csatlakoztatása esetén teljes értékű rendszerként is. A kazán beépítve tartalmazza a tágulási tartályt, hidraulikai egységet, szabályzót, és minden olyan biztonsági berendezést, amely egy napkollektoros rendszer működéséhez szükséges.
KÉT FÜGGETLEN HŐCSERÉLŐ
Mind a fűtési, mind a HMV hőcserélő rozsdamentes acélból készült.
DIGITÁLIS VEZÉRLÉSŰ LÁNGMODULÁCIÓ
Az elektronikus lángmoduláció folyamatos energia megtakarítás és emelt szintű komfort biztosítása mellett képes a fűtővíz, valamint a használati melegvíz hőmérsékletének megfelelő szabályozására.
AUTOMATIKUS BY-PASS
Az automatikus by-pass része a készülék alapfelszerelésének, és lehetővé teszi a kazán használatát termosztatikus szeleppel felszerelt radiátoros rendszer esetén is.
MOTOROS VÁLTÓSZELEP
A használati melegvíz előállításakor beépített, segédenergiával működtetett váltószelep irányítja a kazánvizet a HMV hőcserélő felé.
BEÉPÍTETT ROZSDAMENTES TÁROLÓ
A beépített 200 literes űrtartalmú melegvíztároló lehetővé teszi a melegvíz felhasználást több csapoló, például két fürdőszoba egyidejű használata esetén is. A második fűtőcsőkígyója a napkollektoros rendszer hidraulikai köréhez csatlakozik.
HMV TÁGULÁSI TARTÁLY
A HMV körben jelentkező nyomásnövekedés kompenzálására a HERCUS készülékek egy második beépített tágulási tartállyal is rendelkeznek a HMV kör számára.
EGYÜTTMŰKÖDÉS A DIM EGYSÉGEKKEL
Ezek a készülékek képesek együttműködni az Immergas DIM egységeivel, így lehetséges mégtöbb, egymástól független fűtési (akár radiátoros, akár kevert) kör kialakítása.
BEÉPÍTETT IDŐJÁRÁSFÜGGŐ SZABÁLYOZÁS
Az időjárásfüggő szabályozás magasabb komfort mellett biztosít költséghatékonyabb üzemelést. Az elektronika a külső hőmérséklet függvényében változtatja a kazánvíz-hőmérsékletet, így energiát takarít meg, és magasabb komfortot biztosít.
ZÓNÁSÍTOTT RENDSZEREKHEZ ALKALMAS
A HERCULES készülékeket többzónás rendszerekhez tervezték. A készülékek ötféle kiépítésben alkalmazhatóak: 1, 2 vagy 3 radiátoros zóna, 1 radiátoros + 2 keverőszelepes, vagy 2 radiátoros és egy keverő szelepes zóna kiszolgálására képesek. A zónák külön-külön szabályozhatók egy-egy termosztát segítségével. Az 1. zóna keringető szivattyúja része az alapfelszereltségnek! Az ABT jelzésű kazán a keverőszelepes körhöz gyárilag tartalmazza az 1 radiátoros + 1 keverőszelepes zóna kiszolgálásához szükséges egységeket (két fűtőköri szivattyú, egy motoros keverőszelep, automata by-pass szelepek és szerelvények).
MODULÁCIÓS KERINGETŐ SZIVATTYÚ
A keringető szivattyú sebességét a vezérlő elektronika folyamatosan változtatja úgy
PROGRAMOZHATÓ HMV TÁROLÓ FŰTÉS
Alapból elérhető a szabályzó elektronikával.
NAGYMÉRETŰ LCD KIJELZŐ
A nagyméretű kijelzőn a készülék számos információt közöl a felhasználóval. Megjeleníti a különböző működési jellemzőket, az aktuális funkciót (szivattyú utókeringtetés, égéstér szellőztetés, HMV készítés, stb.) vagy akár az üzemórák, gyújtások számát.
KONDENZÁCIÓS TECHNOLÓGIA
Az égéstermék rejtett hőjének (vízgőz tartalmának) kihasználása (kondenzációja) révén ugyanannyi energiát, mint a hagyományos, nem kondenzációs készülékek, kevesebb gáz eltüzelésével képesek leadni. A jobb tüzeléstechnikai hatásfok révén nem csak energiát takarít meg, hanem a környezetet is kevésbé terheli.
IPX5D ELEKTROMOS VÉDETTSÉG
Magas páratartalmú és fröccsenő vizes környezetben is biztosítja a készülék biztonságos működését.
Méretek
|
BEFOGLALÓ MÉRETEK |
||||
|
Típus |
Magasság |
Szélesség |
Mélység |
Füstgáz elvezetés / levegő bevezetés mérete [mm] |
|
HERCULES Condensing 26 Solar ErP |
1970 |
600 |
750 |
Ø 60/100 |

A készülék jobboldalán található kis ajtó nyithatósága érdekében annál az oldalnál a faltól legalább 300mm távolságot kell hagyni!
|
CSATLAKOZÓ MÉRETEK |
||
|
RA3 |
3. direkt fűtési (magas hőmérsékletű) zóna visszatérő vezeték csatlakozása (opcionális) |
G3/4” |
|
MA3 |
3. direkt fűtési (magas hőmérsékletű) zóna előremenő vezeték csatlakozása (opcionális) |
G3/4” |
|
RA2 |
2. direkt fűtési (magas hőmérsékletű) zóna visszatérő vezeték csatlakozása (opcionális) |
G3/4” |
|
MA2 |
2. direkt fűtési (magas hőmérsékletű) zóna előremenő vezeték csatlakozása (opcionális) |
G3/4” |
|
RB2 |
2. keverőszelepes (alacsony hőmérsékletű) fűtési zóna visszatérő vezeték csatlakozása (opcionális) |
G1” |
|
MB2 |
2. keverőszelepes (alacsony hőmérsékletű) fűtési zóna előremenő vezeték csatlakozása opcionális) |
G1” |
|
RB1 |
1. keverőszelepes (alacsony hőmérsékletű) fűtési zóna visszatérő vezeték csatlakozása (opcionális) |
G1” |
|
MB1 |
1. keverőszelepes (alacsony hőmérsékletű) fűtési zóna előremenő vezeték csatlakozása (opcionális) |
G1” |
|
RA1 |
1. direkt fűtési (magas hőmérsékletű) zóna visszatérő vezeték csatlakozása |
G3/4” |
|
MA1 |
1. direkt fűtési (magas hőmérsékletű) zóna előremenő vezeték csatlakozása |
G3/4” |
|
G |
Gáz |
G1/2” |
|
AC |
Használati melegvíz csatlakozása |
G3/4” |
|
AF |
Használati hidegvíz csatlakozása |
G3/4” |
|
RC |
Használati melegvíz cirkulációs vezeték csatlakozása (opcionális) |
G1/2” |
|
RP |
Napkollektoros rendszer előremenő vezeték csatlakozása |
G3/4” |
|
MP |
Napkollektoros rendszer visszatérő vezeték csatlakozása |
G3/4” |
|
SC |
Kondenzvíz elvezetés, legalább 13 mm belső átmérő |
|
Műszaki adatok
Kiegészítők
Külsőhőmérséklet-érzékelő
Fűtési elzárócsapok roppantó gyűrűs csatlakozással, szűrővel szerelve
Kondenzvíz átemelő szivattyú
Alpha mágneses örvényszűrő
Fűtési elzárócsapok roppantó gyűrűs csatlakozással (2 db)
2 zónás fűtési rendszerhez (1 db szivattyú, vezérlés, by-pass szelep)
3 zónás fűtési rendszerhez (2 db szivattyú, vezérlés, by-pass szelep)
1 keverőszelepes fűtési rendszerhez (1 db szivattyú, vezérlés, by-pass szelep, motoros keverőszelep) (ABT tip.-nál gyárilag beépítve)
2 keverőszelepes fűtési rendszerhez (2 db szivattyú, vezérlés, by-pass szelep, motoros keverőszelep)
HMV cirkulációs készlet szivattyúval Hercules kazánhoz
Programóra HMV cirkulációs szivattyúhoz
Hálózati hidegvíz visszacsapó szelep menetes csatlakozással
Kézi vezérlésű szobatermosztát
Crono 7 heti programozású, digitális szobatermosztát
Crono 7 vezeték nélküli, heti programozású, digitális szobatermosztát
Tybox 21 digitális szobatermosztát
Tybox 117 heti programozású, digitális szobatermosztát
Tybox 137 vezeték nélküli, heti programozású, digitális szobatermosztát
Tybox 117+ heti programozású, digitális szobatermosztát
Tybox 137+ vezeték nélküli, heti programozású, digitális szobatermosztát
AMICO V2 heti programozású, digitális távvezérlő
Többfunkciós relé panel
Zóna vezérlő doboz
Ø 80 mm-es, vízszintes elvezető készlet végelem nélkül
Ø 60/100 mm-es, koaxiális, vízszintes készlet
Ø 60/100 mm-es, koaxiális, vízszintes kivezetés
Ø 60/100 mm-es, koaxiális, függőleges készlet cserép vörös színben
Ø 80/80 mm-es, szétválasztott készlet
Ø 80 mm-es vízszintes elvezető készlet túlnyomásos üzemre alkalmas kéménybe történő bekötéshez
Ø 80 mm-es vízszintes ki- és bevezető készlet
Ø 80 mm-es végelem vízszintes ki- és bevezetéshez
Ø 80 mm-es függőleges ki- és bevezető készlet
Ø 80/125 mm-es vízszintes kivezető készlet induló idommal
Ø 80/125 mm-es függőleges kivezető készlet induló idommal és ferde tető átvezető gallérral
Ø 60 mm-es tömítőgyűrű
Ø 80 mm-es tömítőgyűrű
Ø 80 mm-es tömítőgyűrű ívekbe
Ø 100 mm-es tömítőgyűrű
Ø 110 mm-es tömítőgyűrű
Ø 125 mm-es tömítőgyűrű
Ø 60/100 mm-es tömítőgyűrű
Ø 80 mm-es, 0,5 m-es toldócső
Ø 80 mm-es, 1 m-es toldócső
Ø 80 mm-es, 2 m-es toldócső
Ø 60/100 mm-es, 0,5 m-es toldócső
Ø 60/100 mm-es, 1 m-es toldócső
Ø 80/125 mm-es, 1 m-es toldócső
Ø 80/125 mm-es, 2 m-es toldócső
Ø 80 mm-es, 90°-os ív
Ø 80 mm-es, 45°-os ív
Ø 60/100 mm-es, 90°-os ív
Ø 60/100 mm-es, 45°-os ív
Ø 80/125 mm-es, 90°-os ív
Ø 80/125 mm-es, 45°-os ív
Ø 80 mm-es, karimás, induló idompár
Ø 60 mm-es, 1 m-es toldócső
Ø 60 mm-es, 2 m-es toldócső
Ø 60 mm-es, 90°-os ív
Ø 60 mm-es, 45°-os ív
Ø 60 mm-es rögzítő kengyel csőtoldatok szétcsúszása ellen
Ø 60 mm-es támasztó gyűrű kéményben történő szereléshez a cső központosításához
Felfúrható konzol és csúszó támasztó lemez
Ø 60 mm-es, induló készlet a kémény bekötéshez, Ø 80/60 mm-es szűkítő idommal, 90°-os ívvel és rögzítő pánttal
Kémény szerelőnyílását lezáró készlet szerelőnyílást lezáró lemezzel, tartólemezekkel Ø 80-mm-es bekötéshez, szorítógyűrűs csatlakozóval a kondenzvíz kivezetéshez
Ø 80/125 mm-es, lapos tető átvezető gallér
Ø 80 mm-es flexibilis béléscső készlet
Alap készlet 80-as flexibilis béléscső rendszerhez
Ø 80/125 m-es füstgáz kivezető végelem, kültéri egység 80-as flexibilis béléscső rendszerhez
Toldó adapter 80-as flexibilis csövek közé
Ø 80 mm-es, karimás, induló idom füstgáz elvezetéshez
Ø 60/100 mm-es, karimás, induló idom
Ø 80/125 mm-es, karimás, induló idom
Ø 100 mm-es, fali, csatlakozó idom C9X rendszerhez
Ø 125 mm-es, fali, csatlakozó idom C9X rendszerhez, Ø 80/125 mm-es, karimás, induló idommal
Ø 60/100 mm-es, egyenes idom nyitható vizsgáló nyílással
Ø 80/125 mm-es, egyenes idom nyitható vizsgáló nyílással
Ø 60/100 mm-es, könyök idom nyitható vizsgáló nyílással
Ø 80/125 mm-es, könyök idom nyitható vizsgáló nyílással
Ø 60 mm-es végelem függőleges kivezetéshez, fehér színben, esővédő sapkával és kéménylezáró lemezzel
Ø 80/125 m-es füstgáz kivezető végelem, kültéri egység 50-es flexibilis béléscső rendszerhez
Alap készlet 50-es flexibilis béléscső rendszerhez
Toldó adapter 50-es flexibilis csövek közé
Clone of Ø 50 mm-es flexibilis béléscső készlet
80 mm-es hajlított bekötő készlet (70 fokos) flexibilis rendszerhez
Ø 80 mm-es rögzítő kengyel csőtoldatok szétcsúszása ellen
Ø 80 mm-es támasztó gyűrű kéményben történő szereléshez a cső központosításához
60 mm-es bővítő idom 80 mm-es flexibilis rendszerhez
Takaró gyűrű fali átvezeteséhez 80 mm-es fehér
Takaró gyűrű fali átvezeteséhez 100 mm-es fehér
Takaró gyűrű fali átvezeteséhez 125 mm-es fehér
Takaró gyűrű fali átvezeteséhez 80 mm-es szürke
Takaró gyűrű fali átvezeteséhez 100 mm-es szürke