MAGIS PRO 12

Rendelési kód | 3.030663
Split rendszerű levegő-víz hőszivattyú beltéri és kültéri egységgel
  • Szplit rendszerű Működés módja
  • 12,00kW/ 4,63 Névleges fűtési teljesítmény/COP (35/30°C DT és 7°C külső hőm. mellett)
  • 12,00kW/ 3,87 Névleges hűtési teljesítmény/EER (18/23°C DT és 35°C külső hőm. mellett)
  • A+ (55°C), A+++ (35°C) Szezonális hatásfok (2010/30/EU)

Bemutatás

A kültéri egység főbb jellemzői (Audax Pro):

- inverteres technológia kettős rotációs működéssel
- R410A típusú előre feltöltött közeg
- elzárószelepek az R410A hűtőkörre gyári tartozékként
- nagy hatékonyságú, lamellás levegő/hűtőközeg hőcserélő
- 4-utú szelep a fűtés/hűtés üzemmód átváltásához
- fűtő / hűtő üzemmód
- kültéri telepíthetőség külön kiépítendő védelem nélkül

A beltéri hidraulikai egység főbb jellemzői:

- 72 lemezből álló R410A / víz hőcserélő
- beépített 12 literes fűtési tágulási tartály
- beépíthető 3 kW-os elektromos fűtőpatron (választható)
- hidraulikai egység alacsony energiaszintű szivattyúval
- 3-utó váltószelep HMV tárolóhoz való csatlakozáshoz
- vezérlőpanel 3 fűtési/hűtési zóna vezérléshez    (2 direkt és 1 keverőszelepes zónához vagy kigészítő panellal 1 direkt és 2 kevert zónához)
- integrált rendszer vezérlő csatlakozási lehetőség (választható)
- tartozék elzáró csapok szűrővel

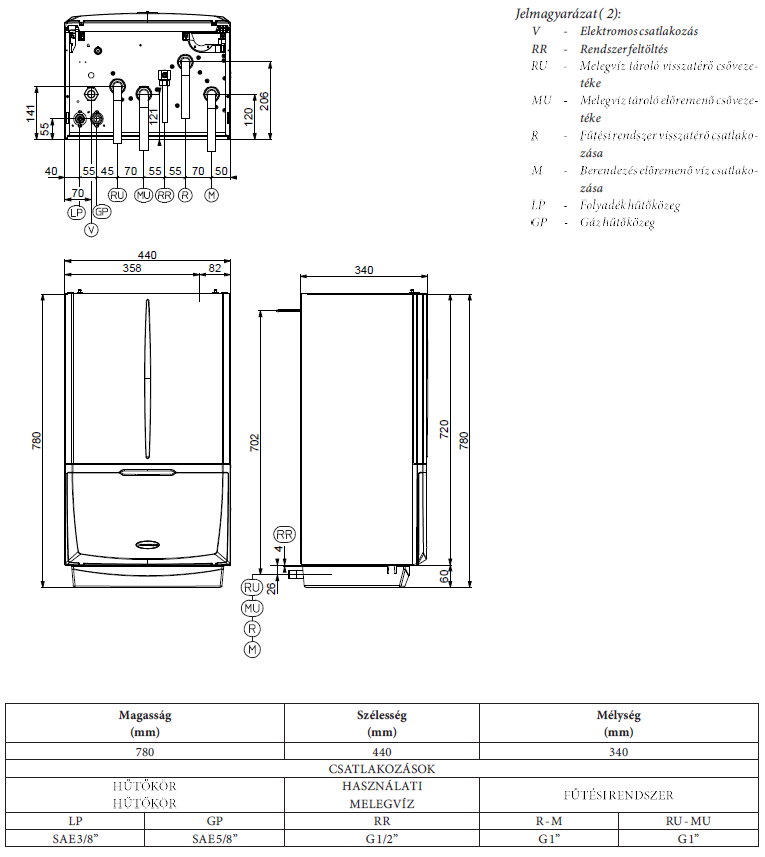
Méretek

Méretek

Műszaki adatok

"

Felépítés

Felépítés

Kiegészítők

Letölthető anyagok

Kézikönyv
Kültéri egység kézikönyv
Prospektus
CAD fájl
EU Megfelelőségi nyilatkozat
HP Keymark tanusítvány
Magis Pro 12 H tarifa EON
Magis Pro 12 H tarifa MVM
Magis Pro 12 H tarifa OPUS TITÁSZ
SCOP adatok
Oldal tetejére