- 3 bar Maximális rendszer nyomás
- 90.00°C Maximális fűtővíz hőmérséklet
- 77,3 kPa Szivattyú hasznos teljesítménye (1000l/óra mellett) keverőszelep nélküli körön
- 79,8 kPa Szivattyú hasznos teljesítménye (1000l/óra mellett) keverőszelepes körön
Bemutatás
Hidraulikus zóna egység egy direkt körhöz és egy kevert körhöz
DIM HC ABT hidraulikai modulok zárt lemez szekrényben, falra szerelhető (vagy igény szerint falbasüllyeszthető) kivitelben. Előnyük a kis helyigény - mélységük mindössze 19 cm! - valamint az esztétikus megjelenésük és a könnyű felszerelhetőségük. Mindegyik modul tartalmazza a zónák függetlenített vezérlését (zónánkénti szobatermosztát opcióval), a megfelelő számú fűtési keringtető szivattyút és a hőszigetelt hidraulikai váltót a bekötő csövekkel és csatlakozókkal, valamint az ABT és A2BT változat esetében a motoros keverőszelepet és integrált időjárásfüggő szabályozást. Ezekkel a DIM egységekkel szinte bármilyen szabályozási igény megoldható, mivel korlátlan számban összeköthetőek! A továbbfejlesztett elektronikának köszönhetően a DIM HC egységeket Immergas BUS csatlakozással felszerelt hőszivattyúkkal üzemeltetve az egyes zónák időjárásfüggő szabályozásának működéséhez egy érzékelő csatlakoztatása is elegendő. Az egységek alacsony energiaszíntű szivattyúval felszereltek.
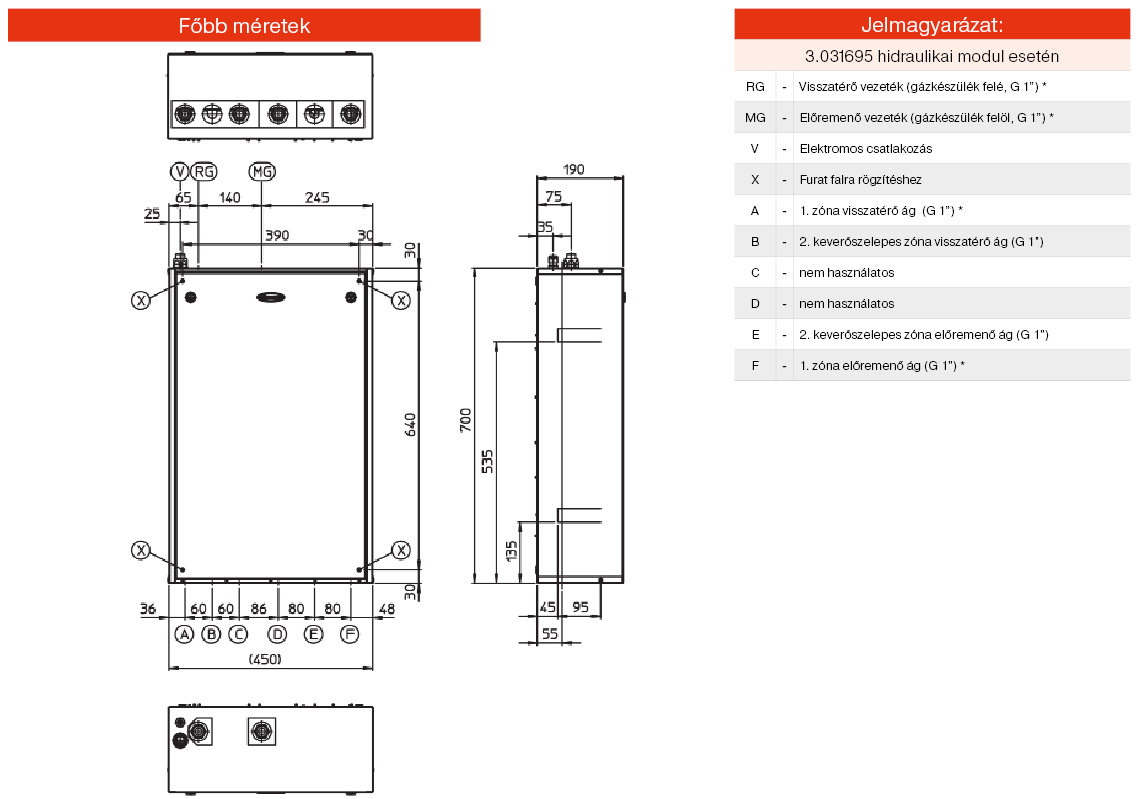
Méretek

Műszaki adatok
